Park Preserve
Applications are no longer being accepted for Park Preserve.
To be notified of future application periods in all areas we serve, click the green notification button below.
Take a virtual tour of some of our Habitat for Humanity of Greater Nashville homes! Bonus video of an interview with one of homeowners at the end!
Start Preparing Now
The most successful applicants are those who have reviewed the eligibility criteria and watched the Information Video Series. Homeownership is a journey, and it starts by clicking the button below.
We also encourage those who are interesting in applying to consider additional resources such as the Financial Empowerment Center to assist with credit issues and budgeting concerns. These items can take time to resolve, so starting now is key to being ready for future application rounds.
Park Preserve homes
Scroll down for details on each of these:
- Location & Driving Directions
- Home & Neighborhood Features
- Sample Floorplans
- Mortgage Payment Estimate
- Eligibility & Income Qualifications
Park Preserve
Directions: Put 510 Ewing Drive in your GPS to find the entrance to Park Preserve. Turn South onto Gwynnwood Drive to enter Park Preserve. Turn left on Polk Forest Circle. The entrance to the new development will be your first left turn (Sophie Spring Court).
Payments starting at approximately $1,050/month
- Assumes a $270,000 purchase price financed by Habitat or its partners with a 30-year, 0% APR loan for $270,000.
- Final sales prices are determined by market value and applicable deed restrictions at the time of purchase. The final mortgage payment will not exceed 30% of an eligible buyer's gross income.
- Estimates for property taxes, homeowners' association, and homeowner's insurance are included, but actual amounts may vary.
Eligibility Criteria
Applicants must meet the full eligibility criteria (click green button below) for these homes, including:
- Minimum credit score of 600. Applicants with no credit score will be given opportunity to prove credit worthiness through alternative methods (rent and other payment histories).
- Savings. Ability to save $2,000 for closing costs within 6-9 months.
- Household sizes of 6 or less (only three-bedroom homes are available for the May 2025 application period).
- Annual income limits as shown in chart below.
Home and Neighborhood Features
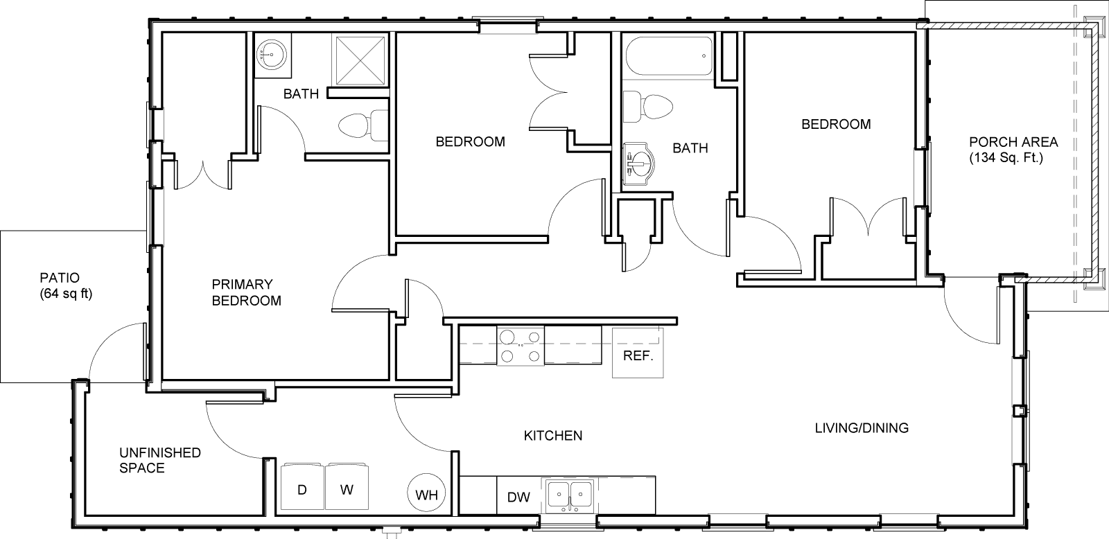
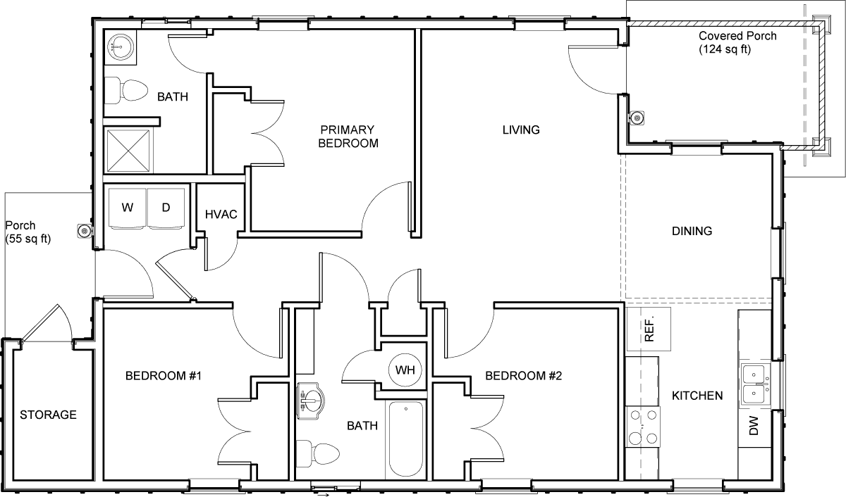
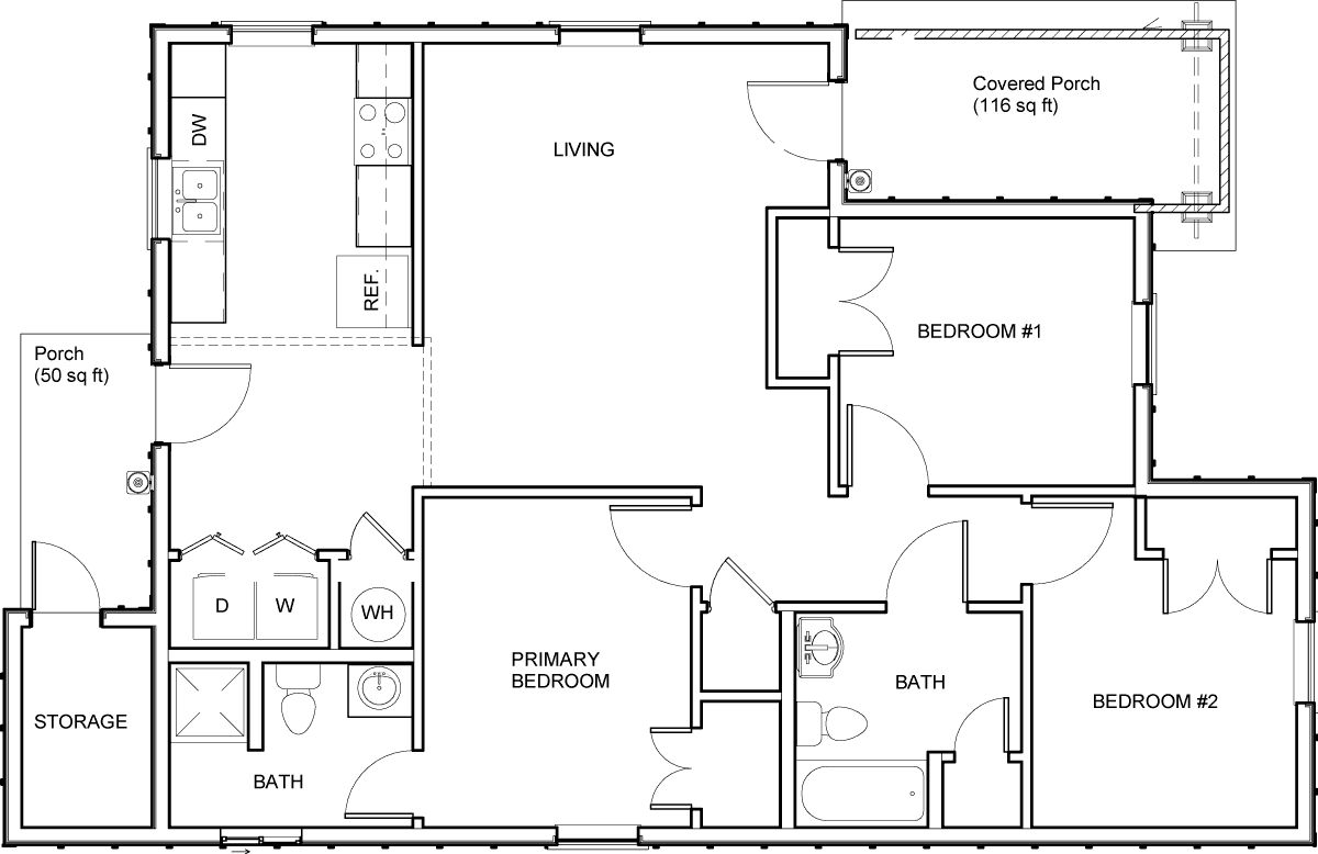
- 3 bedroom, 2 bathroom – approx. 1100 sq ft
- Open floor plans
- One-story, cottage-style homes
- Front porches and concrete driveways
- ENERGY STAR® certified
- Homeowner's Association
- Neighborhood playground
- Trail connector to the new Metro Nashville Park
Sample Floorplans
Click on a floorplan below to open it in a new window.
Park Preserve Annual Income Qualifications
| Household Size | Minimum Mortgage Eligibility Income | Maximum Household Annual Income** |
| 1 | $43,000 | $64,300 |
| 2 | $43,000 | $66,870 |
| 3 | $43,000 | $72,445 |
| 4 | $43,000 | $72,445 |
| 5 | $43,000 | $72,445 |
| 6 | $43,000 | $72,445 |
| 7 | Four bedroom homes are not available during the May 2025 application round | NA |
| 8 | Four bedroom homes are not available during the May 2025 application round | NA |
** Mortgage Eligibility Income includes stable sources of income for the applicants and may differ from Household Income which includes all income sources of all household members.
Income limits are specific to Park Preserve homes as of May 2025.
All income limits and criteria are subject to change.
Start Preparing Now
The most successful applicants are those who have reviewed the eligibility criteria and watched the Information Video Series. Homeownership is a journey, and it starts by clicking the button below.